Tribeca 2008 kamera cofania padła

Pytania i problemy techniczne związane z Subaru. Trytytki, śrubki i inne tematy dla maniaków niszczenia żelastwa ;-)
Regulamin forum
Zanim założysz nowy wątek, poczytaj najczęściej zadawane pytania
ODPOWIEDZ
Mel
0 gwiazdek
Auto: Legacy, Tribeca
Polubił: 0
Polubione posty: 0

Tribeca 2008 kamera cofania padła

Post 27 lut 2019, o 18:14

Witam wszystkich, to mój pierwszy post tu.
Z dnia na dzień i bez ostrzeżenia przestała działać kamera cofania, po wrzuceniu wstecznego jest ciemny obraz z mocno zniekształconymi liniami i tekstem o zachowaniu ostrożności. Obrazu z kamery nie ma. Wyszukiwarka nie pomogła. Ktoś pomoże albo naprawi nie za miliony złotówek?
Tribeca 3.6 2008 wersja Europa

-- M.



lutek34
Awatar użytkownika
3 gwiazdki
Lokalizacja: Krosno
Auto: '05 Outback 2.5 SOHC + LPG, '17 WRX 6MT
Polubił: 4 razy
Polubione posty: 9 razy

Tribeca 2008 kamera cofania padła

Post 27 lut 2019, o 20:34

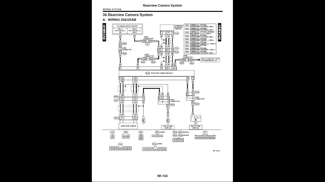
schemat w rękę i szukamy, albo oddajemy samochód do ogarniętego elektronika samochodowego.
53160498_382450245820932_3752830715440398336_n.png

paku
Awatar użytkownika
5 gwiazdek
Auto: OBK H6
Polubił: 44 razy
Polubione posty: 98 razy

Tribeca 2008 kamera cofania padła

Post 27 lut 2019, o 23:23

Wiem, że kiedyś kamery z outbacków były wymieniane w akcji serwisowej.

Jak Tribeca europejska to można zapytać w serwisie, bo pewnie cała kamerka z kablem do wymiany.

Jeśli nie będzie ewidentnego uszkodzenia typu urwany kabel to ciężko bez drugiej zdiagnozować.
"Każdy dobry uczynek będzie słusznie ukarany"
"Kto miał się wystraszyć, to się wystraszył. Kto miał się ześwinić, to się ześwinił"

Mel
0 gwiazdek
Auto: Legacy, Tribeca
Polubił: 0
Polubione posty: 0

Tribeca 2008 kamera cofania padła

Post 28 lut 2019, o 15:47

Dziękuję za schemat!
-- M.

ODPOWIEDZ